Aktuelni projekti

STAMBENO-POSLOVNI OBJEKAT "K-79" SARAJEVO

Izgradnja stambeno- poslovnog objekta “K-79” u naselju Šip

Klijent: Opština centar

Lokacija: Opština Centar, Sarajevo

Površina: 1598,69 m2

Godina: Oktobar 2017.g. –

Usluga: Stručni nadzor

Novinarski članci:

-Ruševinci će dobiti stanove na Šipu

-Napreduju radovi na izgradnji zgrade za smještaj stanara iz ruševnih objekata

-Ruševinci uskoro sele u novu zgradu na Šipu

KOMBINOVANA PREDŠKOLSKA USTANOVA "RAZIGRANI DANI" SARAJEVO

Izgradnja kombinovane predškolske ustanove “Razigrani dani” u Ulici Patriotske lige 46

Klijent: Opština centar

Lokacija: Opština Centar, Sarajevo

Površina: 1324,79 m2

Godina: August 2018.g. –

Usluga: Stručni nadzor

Novinarski članci:

-Započela izgradnja vrtića „Razigrani dani“

-Na gradilištu objekta vrtića „Razigrani dani“ u toku obezbjeđenje građevinske jame

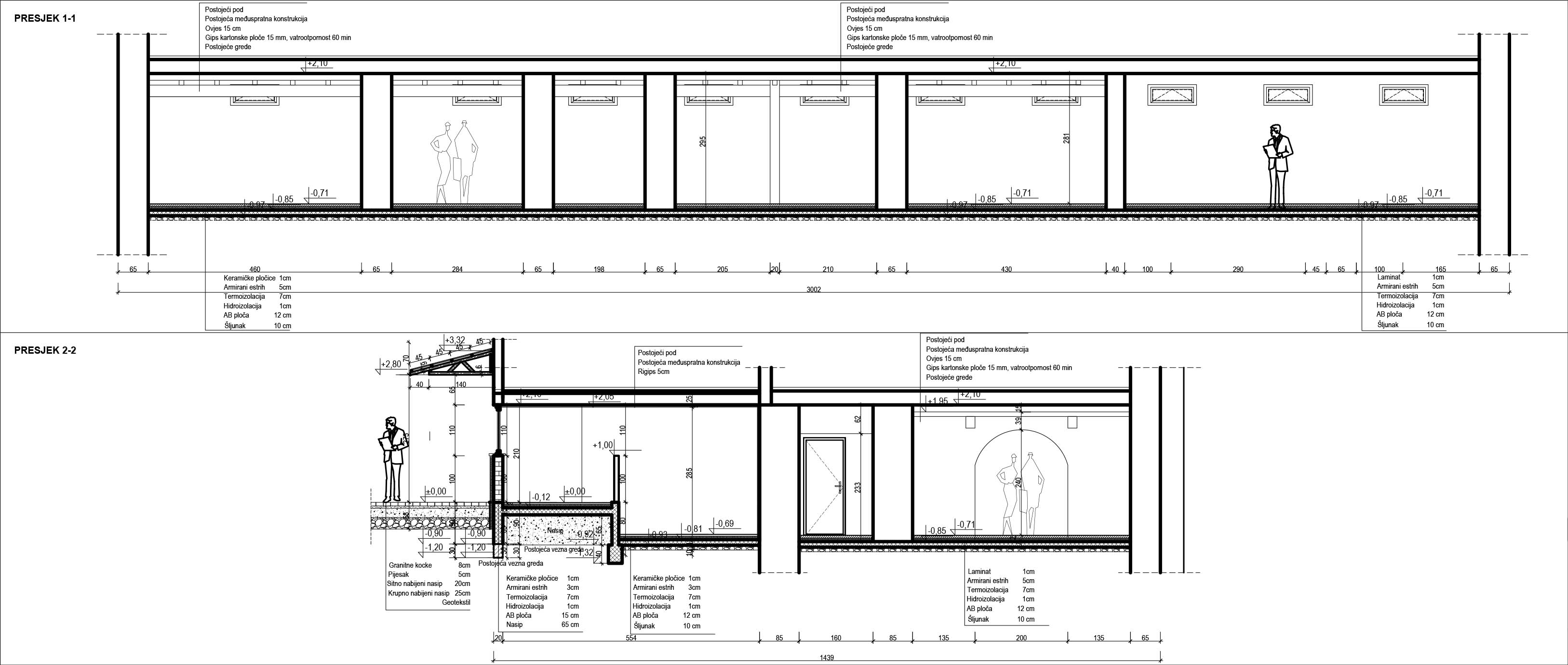
ADAPTACIJA PODRUMSKIH PROSTORIJA OPŠTINE CENTAR SARAJEVO

Adaptacija dijela podrumskih prostorija u zgradi Opšine Centar Sarajevo, za potrebe Operativnog centra civilne zaštite

Klijent: Opština centar

Lokacija: Opština Centar, Sarajevo

Površina: 232,77 m2

Godina: Juli 2019.g. –

Usluga: Stručni nadzor

STAMBENO-POSLOVNO NASELJE "MILJACKA" LAMELA F SARAJEVO

Izgradnja stambeno-poslovnog objekta u sklopu naselja “Miljacka” lamela F

Klijent: MS&WOOD d.d.

Lokacija: Opština Novi Grad, Sarajevo

Površina: 9696,2 m2

Godina: April 2018.g. –

Usluga: Stručni nadzor

STAMBENO-POSLOVNO NASELJE "MILJACKA" LAMELA G SARAJEVO

Izgradnja stambeno-poslovnog objekta u sklopu naselja “Miljacka” lamela G

Klijent: MS&WOOD d.d.

Lokacija: Opština Novi Grad, Sarajevo

Površina: 9696,2 m2

Godina: April 2019.g. –

Usluga: Stručni nadzor

PROIZVODNO-POSLOVNI OBJEKAT "VMS" LAMELA A SARAJEVO

Izgradnja proizvodno-poslovnog objekta “VMS” faza 1, lamela A

Klijent: VMS GROUP d.o.o.

Lokacija: Opština Vogošća, Sarajevo

Površina: 1240,3 m2

Godina: Maj 2019.g. –

Usluga: Stručni nadzor

PRIVATNI STAMBENI OBJEKAT SARAJEVO

Izvođenje građevinskih radova na rekonstrukciji i dogradnji stambenog objekta (P+3) u naselju Hotonj

Klijent: Privatno lice

Lokacija: Opština Vogošća, Sarajevo

Površina: 380 m2

Godina: Juli 2019.g. –

Usluga: Građevinsko-zanatski radovi

Djela govore više od riječi